
Clyde
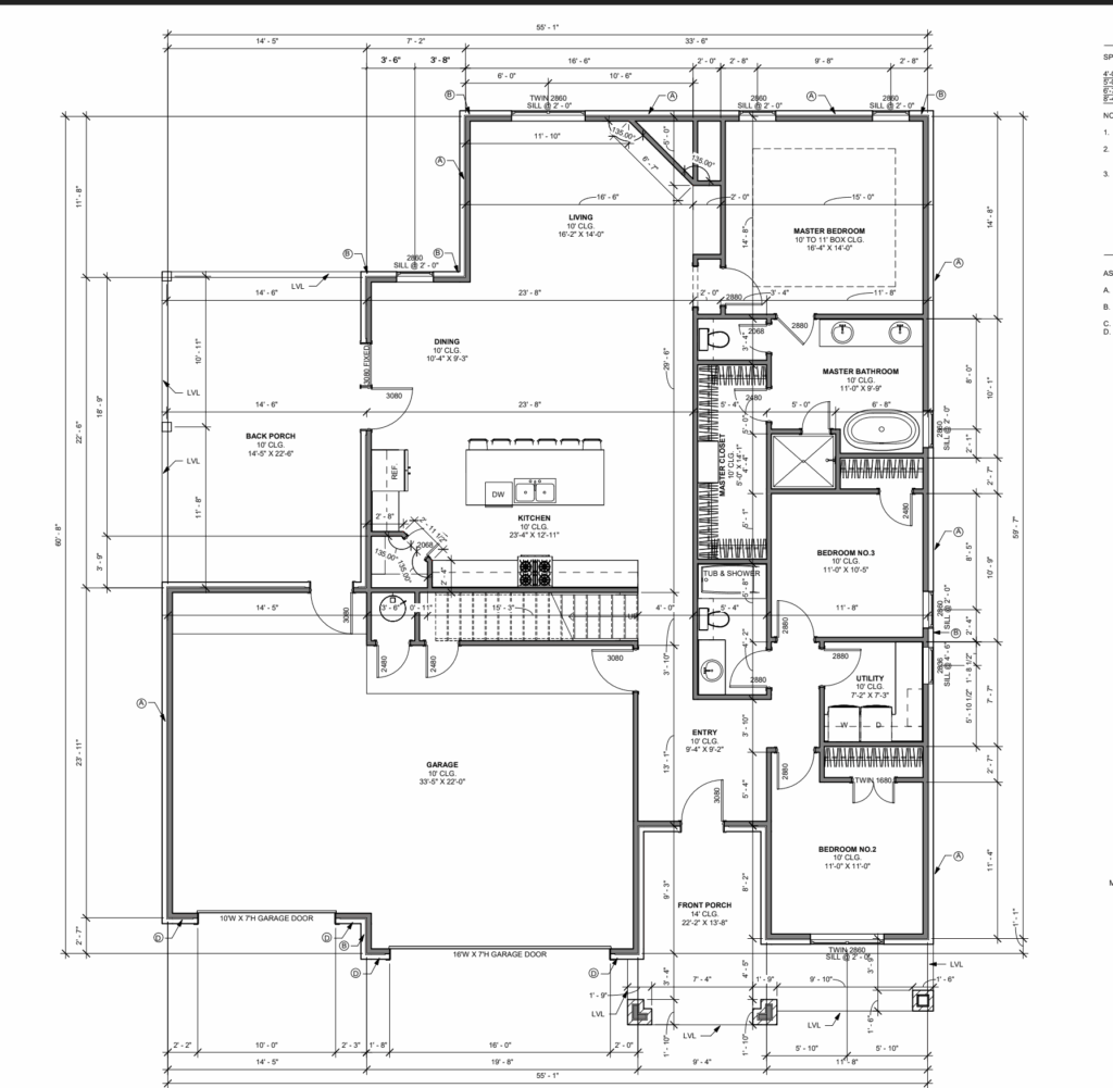
This stunning 5-bedroom, 3 bath home combines modern design with everyday functionality. Step inside through the welcoming front porch to discover an open-concept layout that seamlessly connects the kitchen, dining, and living areas — perfect for family gatherings and entertaining guests.
The spacious kitchen features a large island with seating, a walk-in pantry, and direct access to the covered back porch for effortless indoor-outdoor living. The private primary suite offers a luxurious retreat with dual vanities, a soaking tub, separate shower, and a walk-in closet.
Two additional bedrooms and a full bath are located on the main level, along with a convenient utility room and half bath near the oversized two-car garage.
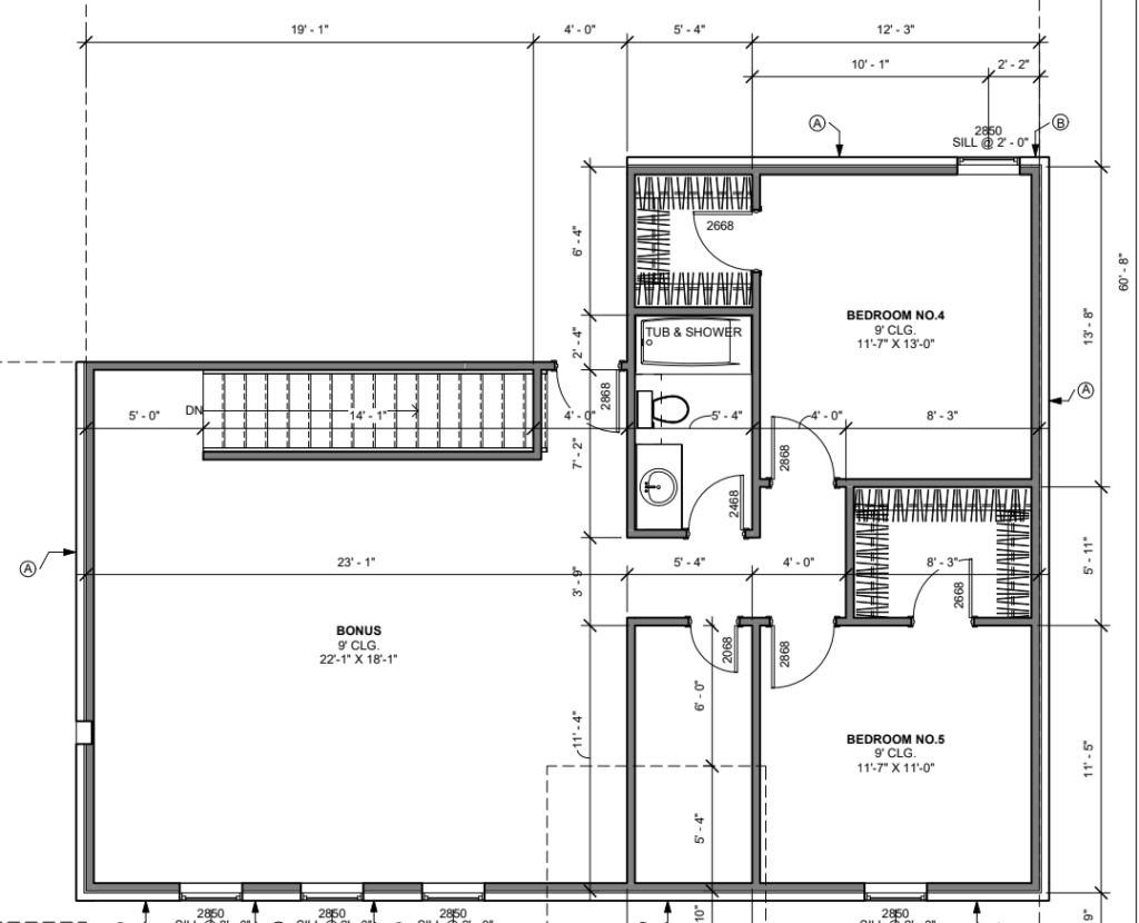
Upstairs, you’ll find a generous bonus room ideal for a media or game space, plus two more bedrooms and a shared full bath — perfect for guests or a growing family.
Enjoy outdoor living year-round on the covered back porch, or relax on the charming front porch that enhances the home’s curb appeal.
Plans

